Villa individuelle en vente

Ben Arous - Cité Du Stade
800 000 DT
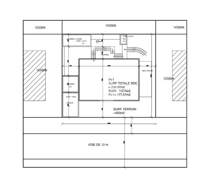
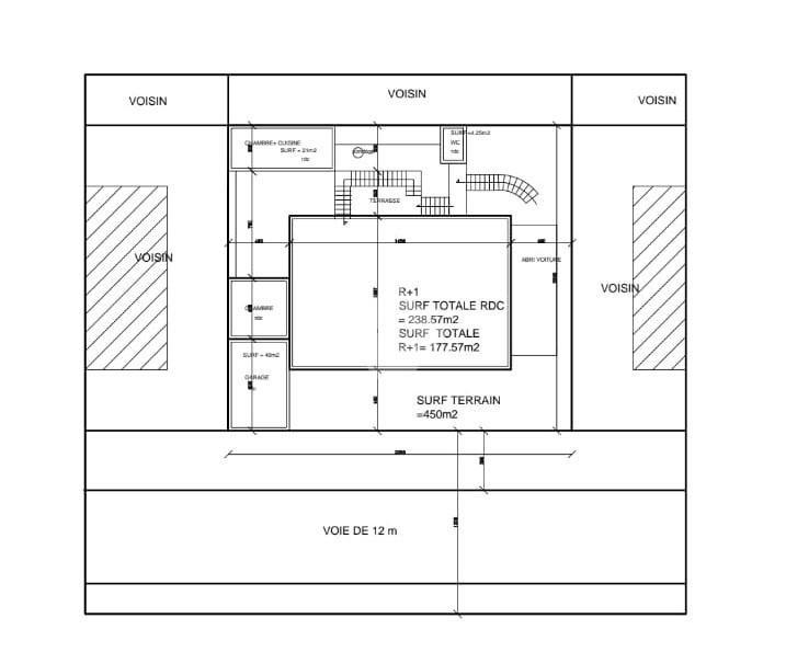
500 m2 500 m2

Villa individuelle en vente

Ben Arous - Cité Du Stade

Description

Cette villa, située dans un emplacement stratégique sur une artère principale de Ben Arous, offre une excellente visibilité et un fort potentiel d’investissement.

Elle comprend deux étages indépendants, chacun avec entrée indépendante, de standing correct, spacieux, comprenant une cuisine , une salle d’eau et trois chambres à coucher par étage.

De plus, il est possible d’ajouter un autre étage supplémentaire pour maximiser le rendement, ce qui en fait une option idéale pour un investisseur à la recherche d’une propriété bien située et rentable ou pour un projet de promotion immobilière.

Afficher tout

Proche

Transport public Transport public
Bir Kassaa
Bir Kassaa
1,3 Km
Transport public
1,4 Km
Bir Kassa
Bir Kassa
1,3 Km
Bir Kassaa
Bir Kassaa
1,5 Km
Ben Arous
Ben Arous
640 m
Écoles Écoles
Charles nicolle
360 m
Collège Ben Arous
510 m
Khawarizmi-School
560 m
rue kairawen
610 m
rue bizzert
820 m
Pharmacie Pharmacie
cherif
700 m
Pharmacie Naimi
950 m
Pharmacie Hakmouni
2,0 Km
Pharmacie
2,0 Km
Pharmacie de nuit
2,0 Km
Hopitaux Hopitaux
Centre de traumatologie et des grands brûlés
1,2 Km
Hôpitaux
1,3 Km
Dispensaire Mégrine
2,0 Km
Hôpital régional de Ben Arous
2,9 Km
Supermarchés Supermarchés
Carrefour
1,8 Km
Supermarchés
2,2 Km
Carrefour Market
2,6 Km
Magro Mégrine
2,7 Km
Carrfeour Mégrine
2,7 Km
Magasins Magasins
Magasins
660 m
ạlmlkẗ
1,7 Km
ʿṭạr
2,0 Km
Boulangerie Viennoiserie Méditerranéenne (BVM)
2,2 Km
Epicerie Am Hammadi
2,2 Km
Restaurants Restaurants
Little Princess
150 m
Route 66 Ben Arous
540 m
Khawarizmi
560 m
Restaurants
1,7 Km
La Bottega
2,0 Km
Afficher tout

Caractéristiques

Rif.:
61885
Plan:
2
Libre:
No
Catégorie:
Moyen standing
Année de construction:
1970
Afficher tout
Prix Prix
800 000 DT
Échéance crédit Échéance crédit
1.389 / mese DT

Plus d'information

* Champ obligatoire
Franchisé
Jiba Real Estate Sarl
Rue HEDI ERRAYES N°75, 2014 2014 Mégrine (GT)

Notre Équipe


  • Lakhdhar Jihene
    Affilié

  • Bacem Heni
    Affilié

  • Marwa Tounakti
    Coordinatrice

  • Loujayn Boughanmi
    Collaborateur
Rue HEDI ERRAYES N°75, 2014 2014 Mégrine (GT)
Zone: MEGRINE
Afficher sur la carte
Franchisé
Jiba Real Estate Sarl
Rue HEDI ERRAYES N°75, 2014 2014 Mégrine (GT)

2026 "Siege Master Franchise Tunisie" Tecno Real Estate - 72, Avenue Mouaouia Ibn Abi Sofiane, El Menzah 7, Ariana 2037 Tunis. Chaque agence est juridiquement et financièrement indépendante